市営住宅かすが平松団地



(注意)室内の写真については、部屋ごとに状況は異なりますのでご注意ください。
団地の概要
| 区分 | 内容 |
|---|---|
|
名称 |
市営住宅かすが平松団地 |
|
団地の所在 |
丹波市春日町平松61番地1 |
|
管理開始年 |
平成11年 |
|
構造等 |
鉄筋コンクリート造3階建て |
|
間取・戸数 |
|
|
エレベーター |
あり |
|
給湯設備 |
ガス給湯器(3点給湯:台所、洗面所、浴室) |
|
浴室設備 |
ユニットバス |
|
排水設備 |
下水道 |
|
駐車場 |
あり(2台以内:1台あたり月額2,090円) |
|
住宅使用料(令和8年度) |
|
|
学校等 |
黒井小学校、春日中学校 |
|
その他 |
- (注意)住宅使用料は、毎年度見直しを行います。
- (注意)住宅使用料は、入居世帯の収入に応じ、毎年度決定します。
- (注意)動物等の飼育は、禁止です。
- (注意)団地ごとに共用部分に係る電気代・水道代などの共益費が必要となります。
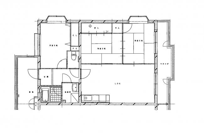
間取り図
(注意)入居される部屋によって、左右対称の間取りとなることがあります。
3LDK(Aタイプ)

3LDK(Bタイプ)

2LDK






更新日:2026年05月01日